3 Bedroom Villa in St.George Peyia, Paphos
St. George, Peyia , Paphos, Cyprus
€2,200,000 plus VAT
Tala, Paphos District, Cyprus
New Development, Sale
From: €650,000 + VAT
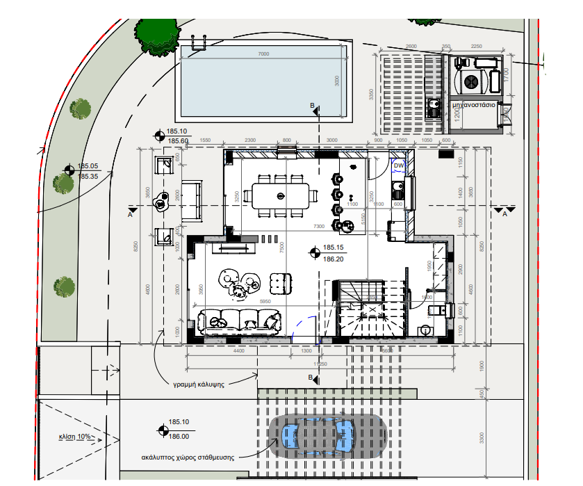
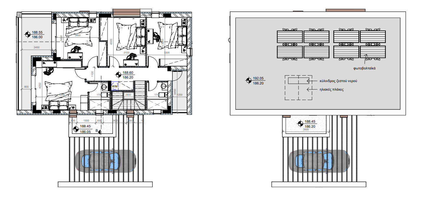
Discover an exclusive collection of 12 stunning 3- and 4-bedroom villas, thoughtfully positioned on generous private plots in one of Paphos’s most prestigious neighborhoods. Each villa blends modern architecture with light-filled, spacious interiors, creating a perfect sanctuary for families, entertaining, and relaxed Mediterranean living.
Premium Features: Underfloor heating for luxurious comfort; VRF climate control system for precise, efficient cooling and heating; high-quality finishes and fittings throughout; elegant, durable flooring that elevates every room; Class A energy efficiency for lower running costs and a smaller footprint; and advanced thermal insulation to maintain optimal comfort year-round.
Convenient Location: Just 3 minutes to Tala village square, with its charming cafés and supermarkets; 4 minutes to Wembley Sports Centre for active pursuits; 7 minutes to the coastline and pristine beaches; 10 minutes to the private British school, ensuring a convenient commute for families; and 28 minutes to Paphos International Airport, linking you to the world. Space, Style, and Serenity. Experience modern luxury and authentic Mediterranean living at its finest, where every detail is designed for comfort, convenience, and lasting value.
(Delivery: 24 Months)
Tala Village is a picturesque community located approximately 8 kilometers north of Paphos. Nestled in the scenic landscape, the village boasts notable landmarks such as the Agios Neophytos Monastery and an ancient amphitheater situated to its northeast. To the south, Tala shares its border with the neighboring village of Emba, which provides easy access to Paphos town.
Historically, Tala’s first residents settled in the late 1800s, and the village had a modest population of just 276. By 2001, the population had grown significantly to 2,540 permanent residents. In recent years, Tala has become exceedingly popular among expatriates, drawn by its stunning views and the convenience of its proximity to Paphos. Its prime location ensures effortless access to all parts of Paphos, making it an ideal spot for those seeking a serene lifestyle with urban connectivity.
St. George, Peyia , Paphos, Cyprus
€2,200,000 plus VAT
Sea Caves, Peyia , Paphos, Cyprus
€3,200,000 No Vat
Owning a home is a keystone of wealth… both financial affluence and emotional security.
Suze Orman